宇成反冲洗过滤器 立式反冲洗过滤器 反冲洗过滤除污器
反冲洗过滤器,立式反冲洗过滤器,反冲洗过滤除污器,反冲洗过滤生产
一、反冲洗过滤器介绍:
反冲洗过滤器用于煤矿井上、井下水质过滤。安装在煤矿井下采煤、掘进喷雾用水、巷道、皮带喷雾洒水管路或地面供水管路上,对所用水杂质(铁锈、泥沙、悬浮物等)进行过滤并可对过滤后留在过滤网内的杂质进行自动或半自动反冲洗的水质过滤器。 环境温度为-10℃~ 40℃,煤矿井下空气成分应符合《煤矿安 全规程》,工作环境允许有淋水情况,按照一般金属物搬运条件即可。适用压力为0.6-10Mpa管路中进行过滤。过滤精度达到60-400目(根据用户需要加工订做)。
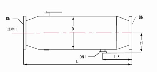
二、反冲洗过滤器尺寸图:


三、反冲洗过滤器安装注意事项:
1、安装只需按照设备筒体上箭头指示进水方向连接在管路上;
2、设计、安装时应尽量考虑排污口在下部,便于杂物的顺利排放;
3、排污管就近接入排水沟,且应保持排污顺畅;
4、为便于观察系统工况和日常操作,应在进、出口安装压力表和手动阀门;
5、排污时,应根据排污情况,通过开关阀门,对滤网冲洗10-60秒。
反冲洗过滤器可立式、卧式、倒置任意方向任意位置安装,可用于工业、农业、市政电力、电子、医药、食品、印染、建筑、钢铁、冶金、造纸等各行各业水过滤。反冲洗过滤器应用广泛,欢迎来电订购。
联系人:张经理 手机:15615688851(微信同号)
QQ:2656653994 座机:0538-6626868
地址:泰安市岱岳区青春创业开发区
